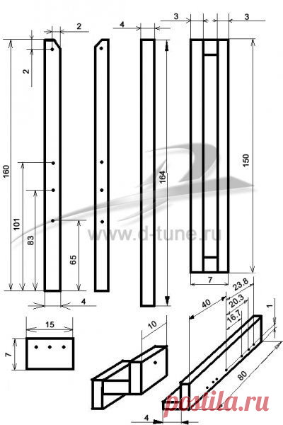
Мольберт своими руками