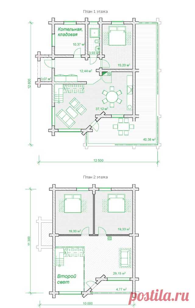
Проект двухэтажного деревянного дома с верандой и балконом площадью 195 м2 (ПД-195-1,5)