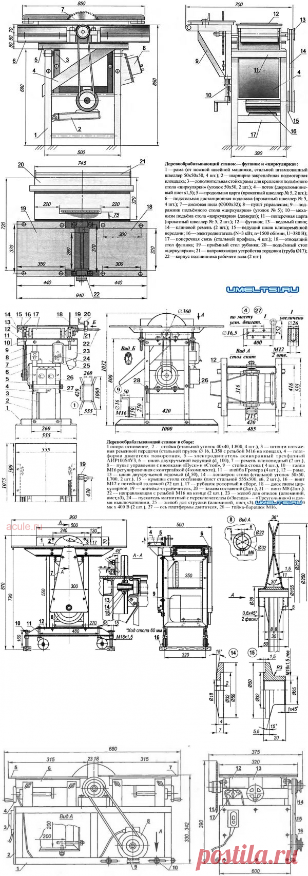
Деревообрабатывающие станки для дома своими руками чертежи