parthenon-house.ru
18.04.2019, 13:44:58
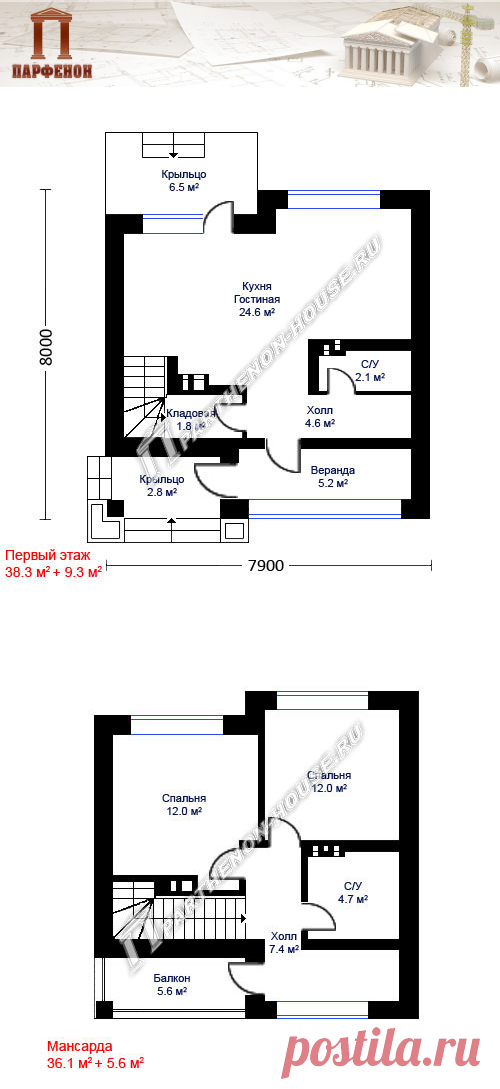
Проект небольшого дома в стиле модерн с жилой мансардой (8.0х7.9 м) ПА-72М Площадь общая: 72,78 кв.м. + 15,68 кв.м. Площадь застройки: 71,40 кв.м. Площадь жилая: 37,24 кв.м. Строительный объем: 387,00 куб.м. Высота 1 этажа: 2,750 м. Высота в мансарде: от 1,110 м. до 3110 м. Высота дома в коньке от уровня земли: 7,780 м. Габаритные размеры дома: 7,900 х 8,000 м. Минимальные размеры участка: 14,00 x 14,00 м. Технология и конструкция: строительство дома из блоков газобетона
Проект небольшого дома в стиле модерн с жилой мансардой (8.0х7.9 м) ПА-72М
Площадь общая: 72,78 кв.м. + 15,68 кв.м.
Площадь застройки: 71,40 кв.м.
Площадь жилая: 37,24 кв.м.
Строительный объем: 387,00 куб.м.
Высота 1 этажа: 2,750 м.
Высота в мансарде: от 1,110 м. до 3110 м.
Высота дома в коньке от уровня земли: 7,780 м.
Габаритные размеры дома: 7,900 х 8,000 м.
Минимальные размеры участка: 14,00 x 14,00 м.
Технология и конструкция:
строительство дома из блоков газобетона