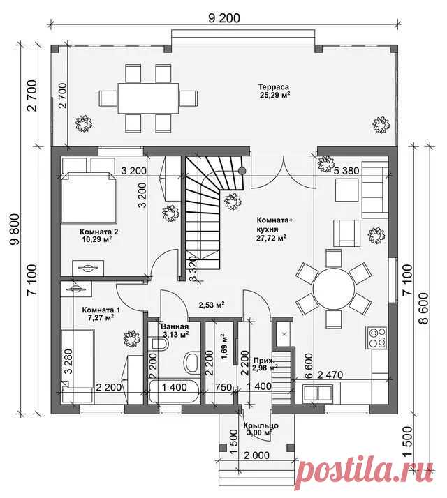
чертёж дома с размерами 8 на 10: 6 тыс изображений найдено в Яндекс.Картинках