parthenon-house.ru
02.08.2019, 10:01:41
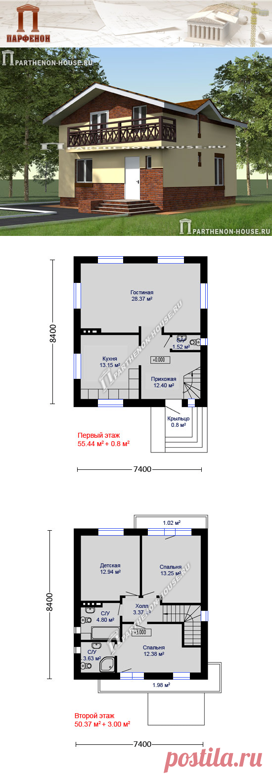
Проект небольшого двухэтажного дома из блоков газобетона ЯА-111 Камин: да. Балконы: да. Всего комнат: 3 + 1. Санузлы: 3. Кол-во жильцов: 4. Площадь общая: 111,00 кв.м. Площадь застройки: 77,60 кв.м. Площадь жилая: 65,10 кв.м. Габаритные размеры дома: 7,400 х 8,400 м. (в осях) Минимальные размеры участка: 14,00 x 15,00 м. Технология и конструкция: строительство дома из газобетона
Проект небольшого двухэтажного дома из блоков газобетона ЯА-111
Камин: да.
Балконы: да.
Всего комнат: 3 + 1.
Санузлы: 3.
Кол-во жильцов: 4.
Площадь общая: 111,00 кв.м.
Площадь застройки: 77,60 кв.м.
Площадь жилая: 65,10 кв.м.
Габаритные размеры дома: 7,400 х 8,400 м. (в осях)
Минимальные размеры участка: 14,00 x 15,00 м.
Технология и конструкция:
строительство дома из газобетона