Постила
  • Авто и мото
  • Гороскопы и эзотерика
  • Дом и уют
  • Здоровье
  • Литература
  • Новости
  • Психология
  • Ремонт
  • Саморазвитие
  • Фотография и искусство
  • Какой сегодня праздник?
  • Внешность
  • Дети
  • Еда и напитки
  • Знаменитости
  • Маникюр
  • Покупки
  • Путешествия
  • Рукоделие
  • Свадьба
  • Цветы
  • Кусочек Постилы
  • Вязание
  • Диеты и похудение
  • Животные
  • Компьютеры и телефоны
  • Музыка
  • Открытки новое
  • Причёски
  • Разное
  • Сад и огород
  • Спорт и фитнес
  • Блог Постилы
  • Вход / Регистрация
    • Кнопка Пост!
    • Правила
Главная   /   Мастерская   /   Проекты отопления частных домов
    • Встроить
    • Пожаловаться
Проект отопления частного дома, пример 2225
zoom_in
eng-in.ru
29.11.2024, 12:59:44

Проект отопления частного дома, пример 2225

Взгляд Постилы
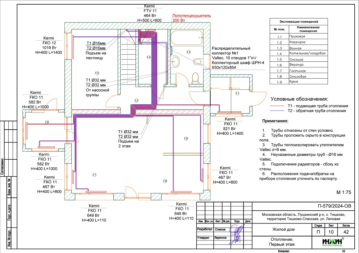
Этот чертеж представляет собой план этажа с указанием расположения отопительных труб и радиаторов. На схеме также обозначены различные элементы инженеринговых систем, такие как распределительный коллектор и теплогенератор. Чертеж включает в себя условные обозначения и спецификации оборудования.
отопление частного дома
отопление
проект
частный дом
один дома
чертеж
инженерные системы
план этажа
проект дома
проекты
технологические схемы
Проект отопления частного дома, пример 2225
Постила
Что такое Постила О нас Блог Постила ВКонтакте Кнопка «Пост!»
Новые посты Новые доски Открытки Рецепты Aрхив
Категории Темы Теги Лучшее на Постиле Какой сегодня праздник?
Помощь Правила Пользовательское соглашение Наши партнеры: Пикабу Промокоды Пикабу Рекламодателям