Постила
  • Авто и мото
  • Гороскопы и эзотерика
  • Дом и уют
  • Здоровье
  • Литература
  • Новости
  • Психология
  • Ремонт
  • Саморазвитие
  • Фотография и искусство
  • Какой сегодня праздник?
  • Внешность
  • Дети
  • Еда и напитки
  • Знаменитости
  • Маникюр
  • Покупки
  • Путешествия
  • Рукоделие
  • Свадьба
  • Цветы
  • Кусочек Постилы
  • Вязание
  • Диеты и похудение
  • Животные
  • Компьютеры и телефоны
  • Музыка
  • Открытки новое
  • Причёски
  • Разное
  • Сад и огород
  • Спорт и фитнес
  • Блог Постилы
  • Вход / Регистрация
    • Кнопка Пост!
    • Правила
Главная   /   Мастерская   /   Проекты отопления частных домов
    • Встроить
    • Пожаловаться
Проект отопления частного дома, пример 2312
zoom_in
eng-in.ru
03.02.2025, 8:50:26

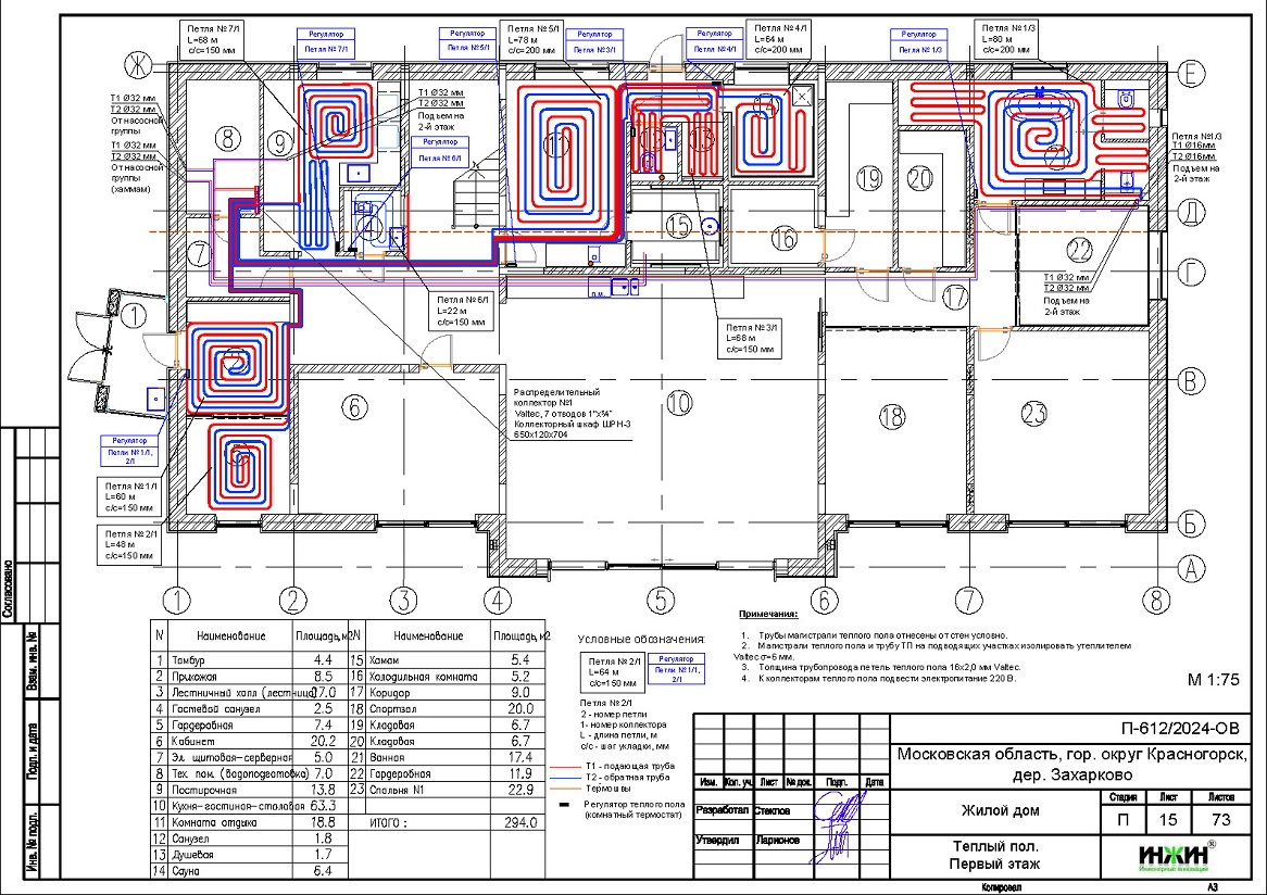
Проект отопления частного дома, пример 2312

Взгляд Постилы
Это детализированный план первого этажа здания в Московской области, городской округ Красногорск, деревня Захарково. Изображение содержит подробное распределение помещений и технических элементов, таких как трубы системы отопления, обозначенные разными цветами, включая красный и синий. На плане указаны размеры помещений, а также расположение дверей и окон. В нижней части чертежа находятся таблицы с данными о площадях комнат, их назначении и условиях эксплуатации. Архитектурная композиция включает также инженерные коммуникации, такие как система теплоснабжения. В правом нижнем углу можно увидеть печать проектировщика и подписи ответственных лиц. План выполнен в масштабе 1:75, что позволяет рассмотреть детали и особенности здания. Вся информация на чертеже сопровождается терминами, такими как "холл", "ларь", "котельная", на русском языке.
отопление частного дома
отопление
проект
частный дом
один дома
планировка
проект дома
инженерные сети
проекты
захарково
Проект отопления частного дома, пример 2312
Постила
Что такое Постила О нас Блог Постила ВКонтакте Кнопка «Пост!»
Новые посты Новые доски Открытки Рецепты Aрхив
Категории Темы Теги Лучшее на Постиле Какой сегодня праздник?
Помощь Правила Пользовательское соглашение Наши партнеры: Пикабу Промокоды Пикабу Рекламодателям