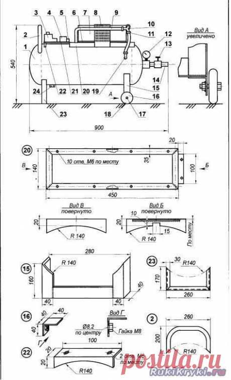
Компрессор
sso.passport.yandex.ru
Несложный и очень удачный оптический компрессор Flatline | Байки про педальки | Дзен
itunes.apple.com
[Sale-iPad] Audio Mastering Audio Mastering, является iOS-приложением для мастеринга, которое имеет параметрический и графический эквалайзеры, многополосный компрессор, лимитер, а также эффекты реверберации и гармонического насыщения. 799 руб. -> 429 руб. Ссылка: ========================== #app_store #распродажа@app_4u














































