Постила
  • Авто и мото
  • Гороскопы и эзотерика
  • Дом и уют
  • Здоровье
  • Литература
  • Новости
  • Психология
  • Ремонт
  • Саморазвитие
  • Фотография и искусство
  • Какой сегодня праздник?
  • Внешность
  • Дети
  • Еда и напитки
  • Знаменитости
  • Маникюр
  • Покупки
  • Путешествия
  • Рукоделие
  • Свадьба
  • Цветы
  • Кусочек Постилы
  • Вязание
  • Диеты и похудение
  • Животные
  • Компьютеры и телефоны
  • Музыка
  • Открытки новое
  • Причёски
  • Разное
  • Сад и огород
  • Спорт и фитнес
  • Блог Постилы
  • Вход / Регистрация
    • Кнопка Пост!
    • Правила
Главная   /   Наука и техника   /   нефтеперегонное оборудование, мини НПЗ.
    • Встроить
    • Пожаловаться
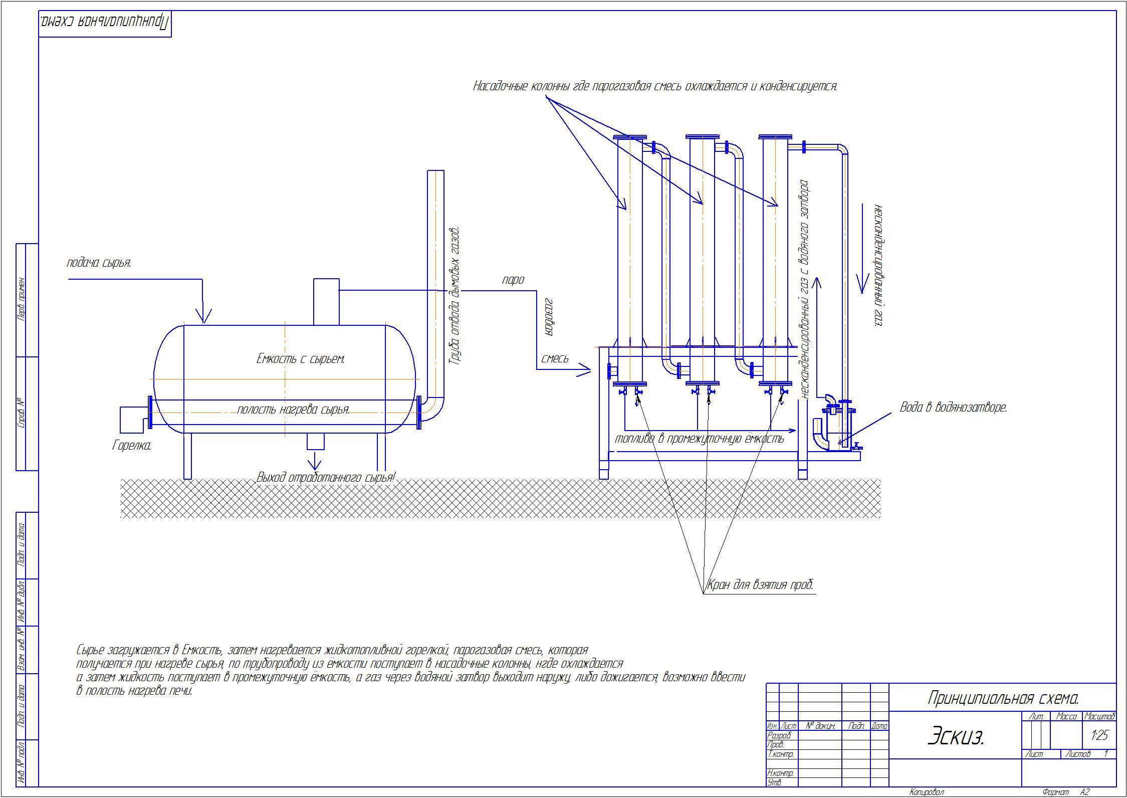
Простейшая схема, так называемый "самовар",  либо нефть либо печное топливо темное.. в общем все что можно разогнать.. перегоняется на фракции:  бензин (40... 200 °С); лигроин (110... 230 °С); керосин (140... 300 °С); газойль (230... 330 °С) и соляр (280... 350 °С).
Для того что бы определить что из чего получится нужно посмотреть лабораторную разгонку сырья- фракционный состав...допустим я предлагаю рассмотреть пиролизное топливо из шин, смотреть следующую картинку.
zoom_in
26.12.2014, 12:57:35

Простейшая схема, так называемый "самовар", либо нефть либо печное топливо темное.. в общем все что можно разогнать.. перегоняется на фракции: бензин (40... 200 °С); лигроин (110... 230 °С); керосин (140... 300 °С); газойль (230... 330 °С) и соляр (280... 350 °С). Для того что бы определить что из чего получится нужно посмотреть лабораторную разгонку сырья- фракционный состав...допустим я предлагаю рассмотреть пиролизное топливо из шин, смотреть следующую картинку.

схемы
картинки
картинка
картинки к
смотреть картинки
картинка к
бензин
все у них получится
лигроин
разгонка
соляр
лабораторное оборудование
Простейшая схема, так называемый "самовар", либо нефть либо печное топливо темное.. в общем все что можно разогнать.. перегоняется на фракции: бензин (40... 200 °С); лигроин (110... 230 °С); керосин (140... 300 °С); газойль (230... 330 °С) и соляр (280... 350 °С). Для того что бы определить что из чего получится нужно посмотреть лабораторную разгонку сырья- фракционный состав...допустим я предлагаю рассмотреть пиролизное топливо из шин, смотреть следующую картинку.
Постила
Что такое Постила О нас Блог Постила ВКонтакте Кнопка «Пост!»
Новые посты Новые доски Открытки Рецепты Aрхив
Категории Темы Теги Лучшее на Постиле Какой сегодня праздник?
Помощь Правила Пользовательское соглашение Наши партнеры: Пикабу Промокоды Пикабу Рекламодателям