Постила
  • Авто и мото
  • Гороскопы и эзотерика
  • Дом и уют
  • Здоровье
  • Литература
  • Новости
  • Психология
  • Ремонт
  • Саморазвитие
  • Фотография и искусство
  • Какой сегодня праздник?
  • Внешность
  • Дети
  • Еда и напитки
  • Знаменитости
  • Маникюр
  • Покупки
  • Путешествия
  • Рукоделие
  • Свадьба
  • Цветы
  • Кусочек Постилы
  • Вязание
  • Диеты и похудение
  • Животные
  • Компьютеры и телефоны
  • Музыка
  • Открытки новое
  • Причёски
  • Разное
  • Сад и огород
  • Спорт и фитнес
  • Блог Постилы
  • Вход / Регистрация
    • Кнопка Пост!
    • Правила
Главная   /   Разное   /   Полезные советы
    • Встроить
    • Пожаловаться
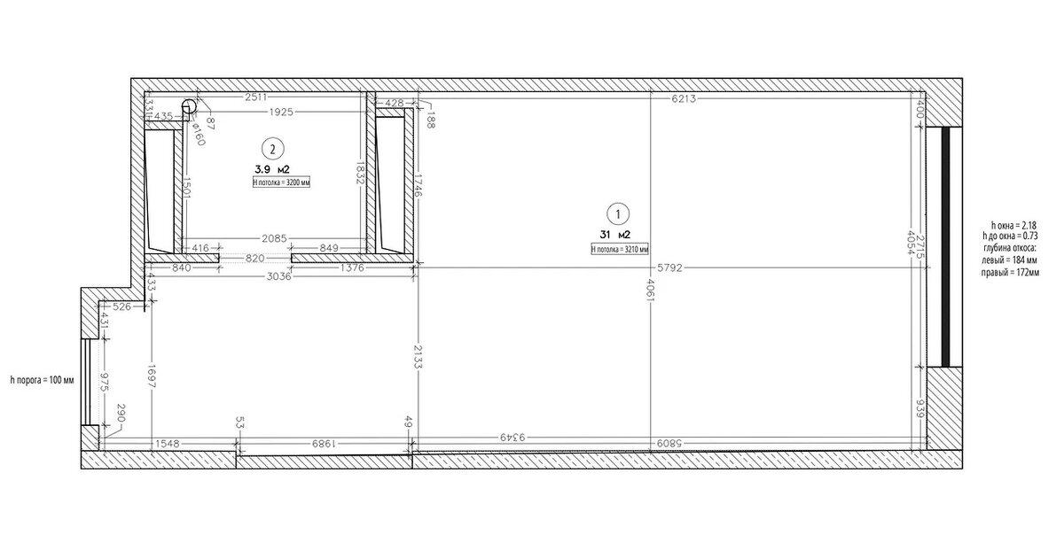
Как студию 35 м² превратили в яркую однушку со спальней и кухней-гостиной для сдачи в аренду: планировка до и после
Дизайнеры Вадим и Екатерина Бычковы оформили однокомнатную квартиру 35 м² для сдачи в аренду. Несмотря на маленькую площадь, удалось обустроить изолированную спальню с рабочим местом, а также сформировать объединённую кухню-гостиную со столовой. Общая площадь: 35 м² Место: Москва...
Читай дальше на сайте. Жми подробнее ➡
zoom_in
gotovim.rogovo101.ru
10.12.2021, 11:40:13

Как студию 35 м² превратили в яркую однушку со спальней и кухней-гостиной для сдачи в аренду: планировка до и после Дизайнеры Вадим и Екатерина Бычковы оформили однокомнатную квартиру 35 м² для сдачи в аренду. Несмотря на маленькую площадь, удалось обустроить изолированную спальню с рабочим местом, а также сформировать объединённую кухню-гостиную со столовой. Общая площадь: 35 м² Место: Москва... Читай дальше на сайте. Жми подробнее ➡

планировка спальни
Как студию 35 м² превратили в яркую однушку со спальней и кухней-гостиной для сдачи в аренду: планировка до и после Дизайнеры Вадим и Екатерина Бычковы оформили однокомнатную квартиру 35 м² для сдачи в аренду. Несмотря на маленькую площадь, удалось обустроить изолированную спальню с рабочим местом, а также сформировать объединённую кухню-гостиную со столовой. Общая площадь: 35 м² Место: Москва... Читай дальше на сайте. Жми подробнее ➡
Постила
Что такое Постила О нас Блог Постила ВКонтакте Кнопка «Пост!»
Новые посты Новые доски Открытки Рецепты Aрхив
Категории Темы Теги Лучшее на Постиле Какой сегодня праздник?
Помощь Правила Пользовательское соглашение Наши партнеры: Пикабу Промокоды Пикабу Рекламодателям